深圳
深圳 宝安区 福永 会展湾云岸

会展湾云岸

现房 小户型 中心商务区 高回报率 精装修 地铁沿线 特价优惠

公寓 50000元/㎡ 37~124㎡
办公 47000元/㎡ 178~880㎡
全球最大会展中心纯公寓住宅
产权:
40
开盘日期:
2020-04-02
开 发 商:
招华实业
物业公司:
华侨城物业
地址:
深圳市宝安区凤塘大道与福园二路交汇处(宝安国际会展中心东侧)
熊春节
13510780957 (熊春节)
24小时看房热线
项目信息 楼盘相册
关注 虚假举报

项目信息

楼 栋:
4栋
总 户 数:
25
建筑面积:
公寓㎡
占地面积:
4.2㎡
车位:
970
物 业 费:
7
容 积 率:
3.66
绿 化 率:
30.00%
开盘日期:
2020-04-02
交楼日期:
2021-08-29
项目介绍:

项目基础数据:

用地性质商业服务型用地

占地面积4.2万㎡

建筑面积15.6万㎡

用地年限40年(20168月起)

车位947

占地面积26276.86

建筑面积96263.39

容积率3.66

绿化率30%

物业费7/㎡·月

交付时间&标准20218&带品牌装修

物业公司华侨城物业

项目地址深圳市宝安区凤塘大道与福园二路交汇处(宝安国际会展中心东侧)

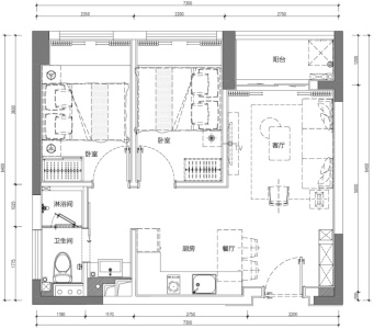
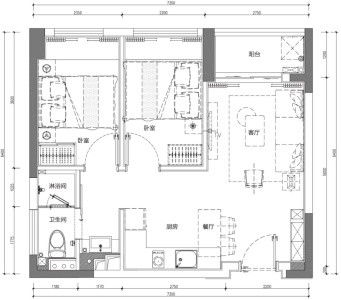
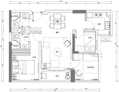
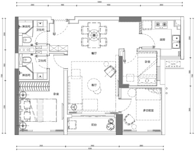
T1栋梯户比513

户型套数298套,包括68套约60㎡,84套约91㎡,22套约124

层高标准层高3米,大堂层高7.2

露台714层分别设有公共露台,24层设有露天大平台

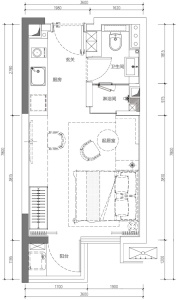
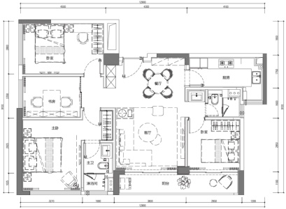
T2(梯户比)628

户型套数:648套,包括506套约34㎡,46套约41㎡,92套约56

层高:标准层高3米,大堂层高5.1

露台:T2915层分别设有公共露台,24层设有露天大平台

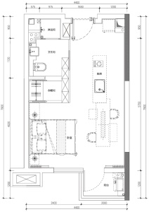
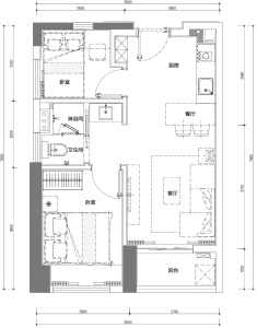
T4

梯户比:312

户型套数:229套,包括135套约60㎡,74套约90

层高:标准层高3米,大堂层高7.2

露台:10层设有公共露台,20层设有露天大平台




会展湾云岸现房

小户型 中心商务区 高回报率 精装修 地铁沿线 特价优惠

公寓 50000元/㎡    37~124㎡
办公 47000元/㎡    178~880㎡
全球最大会展中心纯公寓住宅
产权:
40
开盘日期:
2020-04-02
开 发 商:
招华实业
物业公司:
华侨城物业
地址:
深圳市宝安区凤塘大道与福园二路交汇处(宝安国际会展中心东侧)
熊春节
13510780957 (熊春节)
24小时看房热线

推荐新房